Одноэтажный дом для круглогодичного проживания: результаты строительства
Дом для круглогодичного проживания не всегда должен быть большим. Достаточно, чтобы он был надежным, теплым и учитывал потребности семьи, которая будет в нем проживать. К нам в СК "Свой теплый дом" обратился Заказчик с пожеланием по строительству одноэтажного загородного дома для постоянного проживания. Необходимо было подобрать проект с кухней-гостиной и 3 спальнями, а также просторным санузлом и отдельной котельной для подключения газового отопительного котла. Давайте познакомимся с получившимся домом!

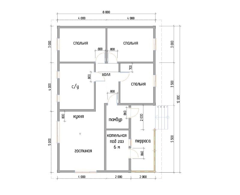
Дом в коттеджном поселке Крутой Ручей (Ленинградская область) построен по проекту К-14 (с небольшими изменениями). Это одноэтажный дом с габаритами 8 на 12 метров. Посмотрим поближе на проект?

Входной группой служит небольшая 11-метровая терраса. На террасе помимо основного входа в дом также расположен отдельный вод в котельную, оборудованную для газового котла в соответствии с нормативными требованиями.
Через небольшой 4-метровый тамбур мы попадаем в холл, откуда есть выходы в просторный санузел (12 кв.м.), 3 изолированные спальни (площадью 12, 12 и 10,5 кв.м.), а также кухню-гостиную площадью 20 кв.м.
Что было сделано?
- Смонтирован фундамент - железобетонные сваи;
- Каркас дома выполнен из сухого бруса и доски;
- Утепление: пол и потолок - 200 мм, стены - 150 мм;
- Наружная отделка фасада - имитация бруса;

- Кровля - кликфальц (цвет серый, RAL 7024);
- Установлены двухкамерные ПВХ стеклопакеты, металлическая входная дверь;
- Смонтирована пластиковая водосточная система и снегозадержатели в цвет кровли.

Внутренняя отделка в доме не производилась по желанию Заказчика.