Строим дачу к лету уже зимой: одноэтажный дачный домик 6х9м
Хотите небольшой дачный дом к лету? Готовы показать отличный пример, который недавно завершили строители СК "Свой теплый дом"! Заказчики задумались об обустройстве своей дачи заранее и начали строительство зимой. Давайте вместе посмотрим, что получилось!

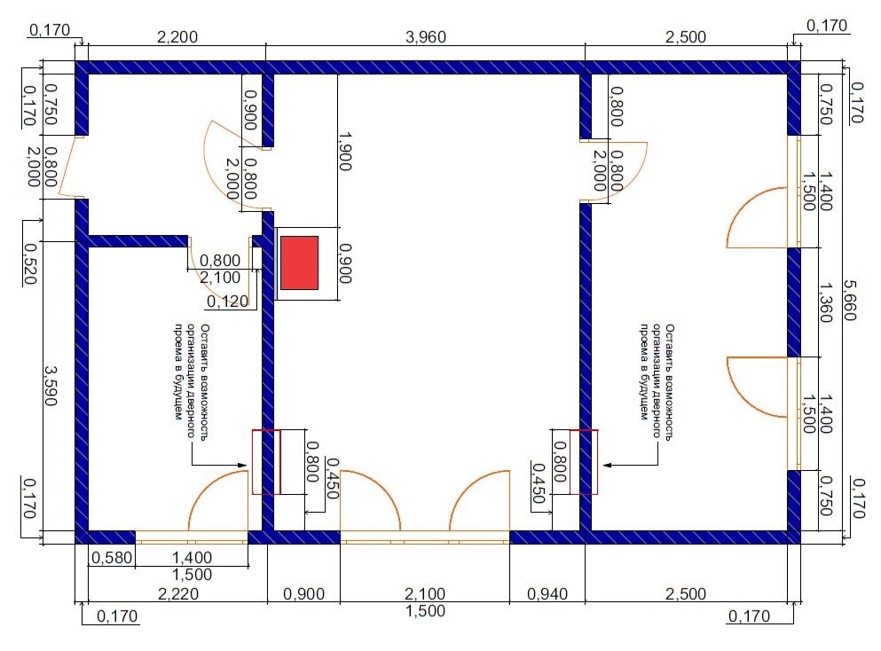
Данный домик был построен в поселке Мга, Ленинградской области. Габариты домика - 6 на 9 метров. Технический план с размерами ищите ниже! Да, дом совсем небольшой :)
.jpg)
По плану в доме предусмотрен тамбур, санузел, кухня-гостиная и спальня. При этом Заказчики предусмотрели возможность проведения перепланировки в дальнейшем и попросили строителей оставить в двух стенах конструктивную возможность обустройства проемов. При проектировании и строительстве эти пожелания были учтены.
Про потенциальную перепланировку: Заказчики думают о том, чтобы в перспективе разделить спальню с 2 окнами на две, пусть и не большие, но изолированные комнатки. Второй потенциальный проем - для организации входа в санузел не из тамбура, а из зоны гостиной.
Площадь дома всего 54 кв.м. Для дачного домика - вполне подходящий вариант. Но если вам интересны другие проекты одноэтажных (и не только) домов, загляните в наш каталог.
Что было сделано?
- Смонтирован фундамент - железобетонные сваи (на габарита дома 6 на 9 использовано 15 свай);
- Каркас выполнен из пиломатериалов камерной сушки;
.jpg)
- Утепление дома: потолок и пол 200 мм, стены - 150 мм;
- Наружная отделка выполнена из имитации бруса с заводской окраской (Заказчики выбрали интересный фисташковый цвет);
- Внутренняя отделка дома - вагонка;
- Установлены двухкамерные ПВХ стеклопакеты, входная металлическая дверь и деревянные межкомнатные двери;
- Кровля - металлочерепица.
Общая стоимость строительства составила 1 175 000 рублей.